ООО Стройкомплекс
ООО Стройкомплекс
Адрес электронной почты защищен от спам-ботов. Для просмотра адреса в вашем браузере должен быть включен Javascript.
Адрес:
129337, г. Москва,
ул. Красная Сосна, д. 20, стр.1
Москва, , 129337 ул. Красная Сосна д. 20 стр.1
Время работы:
Пн. - Чт.: 8:00 - 17:00
Пт.: 8:00 - 16:00
https://sk-metz.ru/images/logo.png
ООО Стройкомплекс 55.846577, 37.682329.
Адрес электронной почты защищен от спам-ботов. Для просмотра адреса в вашем браузере должен быть включен Javascript.

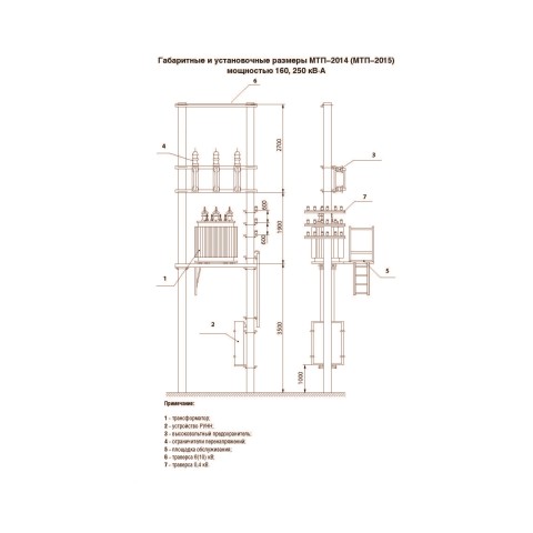
Столбовая трансформаторная подстанция СТП мощностью 160-250 кВА

Артикул:
  • Тип трансформатора:
    ТМГ

*актуальные технические характеристики уточним по запросу

Комплектные трансформаторные подстанции (КТП) представляют собой однотрансформаторные подстанции тупикового типа наружной установки. КТП служат для приема электрической энергии переменного тока напряжением 6 или 10 кВ, преобразования ее в электроэнергию напряжением 0,4 (0,23) кВ для потребителей в районах с умеренным климатом (от минус 45 до плюс 40 °С).
КТП предназначены для электроснабжения и защиты сельскохозяйственных потребителей
(в том числе фермерских хозяйств, садово-огороднических участков), отдельных населенных пунктов и небольших объектов, относящихся к III категории по надежности электроснабжения.
• Высоковольтный ввод в КТП – воздушный.
• ТП подключается к ЛЭП посредством разъединителя, который поставляется комплектно с подстанцией (устанавливается на ближайшей опоре).
• ТП обеспечивают учет активной электрической энергии. По требованию заказчика возможна установка счетчика любой модификации (совмещенного и т.д.).
• В КТП имеется фидер уличного освещения, который оснащен устройством ручного и автоматического включения и отключения. Возможно исполнение КТП без фидера уличного освещения (по требованию заказчика).
• В КТП предусматриваются следующие виды защит:
– от атмосферных перенапряжений;
– от междуфазных коротких замыканий;
– от перегрузки и коротких замыканий линий 0,4 кВ;
– от коротких замыканий цепей обогрева и цепей освещения КТП.
• КТП имеют электрические и механические блокировки, обеспечивающие  безопасную работу обслуживающего персонала.
• Достоинства КТП:
– безопасны для окружающей среды;
– конструкция способствует быстрому монтажу и пуску на месте эксплуатации, а также быстрому демонтажу при изменении места установки;
– имеют резиновые уплотнения на дверях;
– имеют привлекательный эстетичный вид;
– комплектуются современными трансформаторами герметичного исполнения (серии ТМГ) собственного производства.

По  требованию заказчика возможно изготовление мачтовых трансформаторных подстанций в оцинкованном корпусе.

Шкаф РУНН МТП, изготовленный из листовой холоднокатаной стали, оцинкован горячим способом в агрегатах непрерывного цинкования,  под последующую окраску.

Элементы крепления оборудования МТП к опоре, изготовленные из листовой холоднокатаной стали, оцинкованы горячим способом в агрегатах непрерывного цинкования.

Реализован 2-й класс покрытия – толщина покрытия не менее 10 микрометров (свыше 142 грамм цинкового покрытия на 1 м.кв.).

Оцинковка позволяет добиться высокой антикоррозионной стойкости металлической поверхности. Металл приобретает повышенную стойкость к воздействию влаги и соляного тумана. Особенно важно и значимо данное преимущество в условиях эксплуатации «УХЛ1».

По  требованию заказчика возможна изготовление МТП климатического исполнения и категории размещения – УХЛ1 по ГОСТ 15150-69, окраска  в корпоративные цвета с нанесением соответствующего логотипа компании.

Срок службы трансформаторных подстанций данного типа составляет 30 лет.